Well located on the outskirts of the popular main village centre of Honley, Holmfirth, within the conservation area is this Eye catching former public house and restaurant.
Presenting an exciting opportunity for those seeking a versatile property in a prime position that is sure to attract attention.
Full of character, this property is suitable for a variety of schemes, subject to planning permission. The spacious layout and generous grounds provide ample scope for you to tailor the space to your specific needs.
Honley is a picturesque and thriving village, making this an ideal location for both residential and business pursuits.
A wonderful opportunity to breathe new life into this former public house and create something truly special in your own image. Whether you are an investor, developer, or someone looking to embark on a new venture, this property is a rare find that promises potential and charm in equal measure.
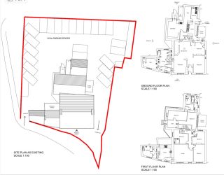
ACCOMMODATION
GROUND FLOOR
ORIGINAL MAIN BAR AREA 32'8" x 34'6"
Enjoying excellent levels of natural light via the windows positioned to the front and side elevations. Multiple access points, two short flights of steps up to the sub section of the ground floor front. Set of stone steps descend down to the tap cellars, another flight of steps descend to lower ground floor section (former kitchen and keeping areas).
FRONT AND SIDE ROOMS (FORMER WC'S) 15'2" x 14'10"
Windows to the front and rear elevations stone feature fireplace, former access door.
END ROOM (FORMER BEER STORE) 14'11" x 11'9"
Box sash windows to the front elevation with privacy glass inset, traditional fireplace positioned in the corner of the room, stone flagged floor.
FORMER WC 6'11" x 15'1"
Box sash windows with privacy glass inset to the rear elevation, blocked up window to the side elevation.
Evidence of previous plumbing for the toilets. Another short flight of steps leads up to the end room.
FORMER KITCHEN AREA 31'1" x 13'5" overall
Two sets of steps leading to former bar and restaurant area, access door leading to the exterior car park.
Windows with secure glass within timber frames positioned to the side elevation.
BACK SECTION 15'4" x 14'2"
To the rear of the former kitchen area.
Former extraction unit, fire escape door leading out to the approach to the car park.
FIRST FLOOR
REAR SECTION (FORMER SNUG) 13'8" x 16'2"
Two windows to the rear elevation and one to the side elevation, exposed trusses and beams on display.
FORMER CHESTERFIELD ROOM 18'1" x 33'1"
Windows of leaded and mullion design positioned to the side elevation together with access door.
SECOND FLOOR/FORMER WINE BAR 33'9" x 33'1"
Windows to the front elevation facing onto Eastgate, exposed timbers and stonework, windows also positioned to the rear and side elevations.
Another short flight of steps up to an inner room.
INNER ROOM (FORMER KITCHEN) 15'1" x 11'2"
With box sash style windows to the front and rear elevations.
Another short flight of steps leads up to an end room.
END ROOM (FORMER WC'S) 15'1" x 11'2"
OUTSIDE
There is car parking at the side and the rear of the property supported by access and egress points along the side elevations of the property. Please note the building has a band of preserved trees to the rear of the curtilage and is located in a conservation area. All enquires regarding planning should be directed to to the local authority or professionals in this field.
VIEWING ARRANGEMENTS
STRICTLY BY APPOINTMENT THROUGH THE AUCTIONEERS OFFICE.
AUCTION NOTES
Open to bid on the 27th of March for 24 hours starting at 12.00 noon through our online bidding system available on our website. A traditional auction under common auction conditions held online.
Buying at auction is a contractual commitment, you are legally obliged to buy the lot on the terms of the sale memorandum at the price you bid. If you are the successful bidder, you are required to pay the deposit and auction fees immediately. As agent for the seller, we treat any failure to satisfy your obligations as your repudiation of the contract and the seller may then have a claim against you for breach of contract. You must not bid unless you wish to be bound by the common conditions of auction. *Please be aware there may be additional fees payable on top of the final sale price. These include and are not limited to administration charges and buyer's premium fees payable on exchange, and disbursements payable on completion. Please ensure you check the property information page for a list of any relevant additional fees as well as reading the legal pack for any disbursements.*
CONTRACT INFORMATION
We draw your attention to the Special Conditions of Sale within the Legal Pack, referring to other charges in addition to the purchase price which may become payable. Such costs may include Search Fees, reimbursement of Sellers costs and Legal Fees, and Transfer Fees amongst others.
GUIDE PRICE
*GUIDE PRICE: This is an estimate of the likely range of selling price and is set at the commencement of marketing. The guide price may change during the marketing period. RESERVE PRICE: This is agreed with the Auctioneer prior to the auction and will not be disclosed to the public. The reserve price is the lowest figure at which the property is available for sale at the auction. If the lot is not sold at the auction then the property may be available for sale afterwards at a higher or lower figure. See catalogue for full explanation.
HOW TO BID
OPEN FOR 24 HOUR BIDDING ON THE 27TH TO 28TH OF MARCH. Opening for online bids from 12noon . To register to bid, access the legal pack or for further details visit our Boultons website.
COUNCIL TAX BAND G
* Generally speaking Guide Prices are provided as an indication of each seller's minimum expectation, i.e. 'The Reserve'. They are not necessarily figures which a property will sell for and may change at any time prior to the auction. Virtually every property will be offered subject to a Reserve (a figure below which the Auctioneer cannot sell the property during the auction) which we expect will be set within the Guide Range or no more than 10% above a single figure Guide.
Submit an enquiry and someone will be in contact shortly.
By setting a proxy bid, the system will automatically bid on your behalf to maintain your position as the highest bidder, up to your proxy bid amount. If you are outbid, you will be notified via email so you can opt to increase your bid if you so choose.
If two of more users place identical bids, the bid that was placed first takes precedence, and this includes proxy bids.
Another bidder placed an automatic proxy bid greater or equal to the bid you have just placed. You will need to bid again to stand a chance of winning.