Offered with grant of planning, application 23/00678/FUL, to create a 3/4
bedroom property with substantial living accommodation over three floors.
Outside there will be extensive gardens (with the views) and off road parking.
Offering an enormous amount of inherent character to work with including
natural stone, original timbers and a significant gross internal floor area.
*** VISIT OUR WEBSITE TO REGISTER, VIEW THE LEGAL PACK AND BID ***
DESIGN
The proposed design allows for the following:
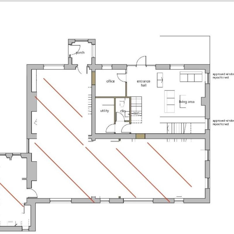
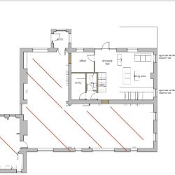
Ground floor - entrance hall, WC, utility, office and living area.
Lower ground floor - dining room (with bi-fold doors to the garden), boot room
and WC.
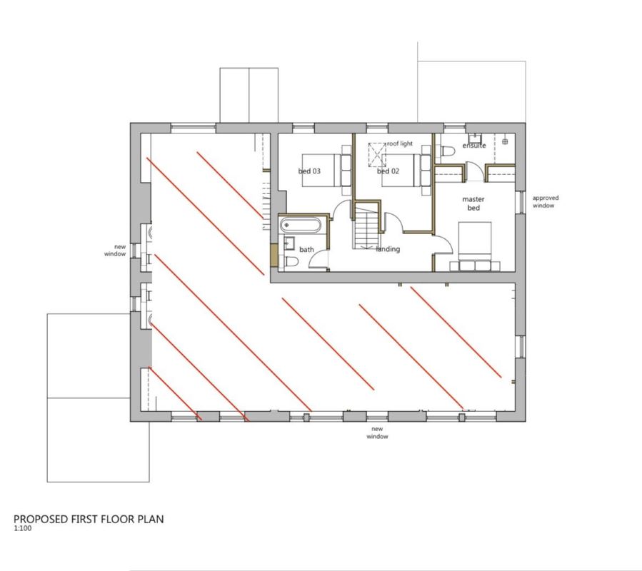
First floor - landing, master bedroom with ensuite, two further bedrooms and
house bathroom.
To the outside the design allows for three parking spaces and a garden to the
rear.
PLANNING CONSENT
The property benefits from planning permission under application
23/00678/FUL from Calderdale Metropolitan Borough Council.
The permission allows subdivision of White Rock Farm to form Plot 1 and Plot
2. This transaction is the sale of Plot 2.
The consent is dated 25th April 2024 with development work needing to
commence no later than the expiration of three years beginning on the date
the permission was granted.
A copy of the consent is available from Boultons.
TENURE
The property currently forms part of title WYK546307 which is for both Plot 1
and Plot 2 White Rock Farm. This transaction will be a Freehold transfer of part
out of the aforementioned title to create a new title. A title plan is currently in
production.
COUNCIL TAX
The property will need to be accessed for Council Tax upon completion.
VIEWINGS
Viewings strictly by appointment with Boultons.
AUCTION NOTES
The lot is offered in an online auction which is open to bid from the 13th of
November for 24 hours with closing bids before 13.00 on the 14th of November
2025, subject to remaining unsold previously.
Buying at auction is a contractual commitment, you are legally obliged to buy
the lot on the terms of the sale memorandum at the price you bid. If you are
the successful bidder, you are required to pay the deposit and auction fees
immediately. As agent for the seller, we treat any failure to satisfy your
obligations as your repudiation of the contract and the seller may then have a
claim against you for breach of contract. You must not bid unless you wish to be
bound by the common conditions of auction.
*Please be aware there may be
additional fees payable on top of the final sale price. These include and are
not limited to administration charges and buyer's premium fees payable on
exchange, and disbursements payable on completion. Please ensure you check
the property information page for a list of any relevant additional fees as well
as reading the legal pack for any disbursements.*
VISIT OUR WEBSITE TO REGISTER & BID
CONTRACT INFORMATION
We draw your attention to the Special Conditions of Sale within the Legal
Pack, referring to other charges in addition to the purchase price which may
become payable. Such costs may include Search Fees, reimbursement of
Sellers costs and Legal Fees, and Transfer Fees amongst others.
You must register online to inspect the documents prior to bidding.
The completion date as per the Common Auction Conditions online is 20
business days from the fall of the electronic hammer.
GUIDE PRICE
*GUIDE PRICE: This is an estimate of the likely range of selling price and is set
at the commencement of marketing. The guide price may change during the
marketing period. RESERVE PRICE: This is agreed with the Auctioneer prior to
the auction and will not be disclosed to the public. The reserve price is the
lowest figure at which the property is available for sale at the auction. If the lot
is not sold at the auction then the property may be available for sale afterwards
at a higher or lower figure. See catalogue for full explanation.
VIEWING
No viewing of the building is permitted on safety grounds. External inspections
only.
HOLDING FEE
£300 of your holding deposit fee will be used to cover banking costs and does
not contribute towards your deposit.
* Generally speaking Guide Prices are provided as an indication of each seller's minimum expectation, i.e. 'The Reserve'. They are not necessarily figures which a property will sell for and may change at any time prior to the auction. Virtually every property will be offered subject to a Reserve (a figure below which the Auctioneer cannot sell the property during the auction) which we expect will be set within the Guide Range or no more than 10% above a single figure Guide.
Submit an enquiry and someone will be in contact shortly.
By setting a proxy bid, the system will automatically bid on your behalf to maintain your position as the highest bidder, up to your proxy bid amount. If you are outbid, you will be notified via email so you can opt to increase your bid if you so choose.
If two of more users place identical bids, the bid that was placed first takes precedence, and this includes proxy bids.
Another bidder placed an automatic proxy bid greater or equal to the bid you have just placed. You will need to bid again to stand a chance of winning.