This modern three-bedroom end town house. Presenting an excellent opportunity for investors, the property is in good decorative order, making it ready for immediate rental.
Notably, there is evidence of a previous structural repair (underpinning), which has been addressed and displayed as completed under reference: Application number - 2017/BN//02164/W on Kirklees planning portal.
This house is competitively priced for the cash market and is available under common auction conditions, providing a unique chance to secure a property through an online auction portal with a 24-hour bidding window.
This residence is particularly appealing to those in the buy-to-let market, with its modern features and prime location, this property is sure to attract interest. Do not miss the chance to make this charming house your next investment or home.
OPEN TO BID 29TH JANUARY 2026 AT 12.00 NOON. CLOSING BIDS ON OR BEFORE 30TH JANUARY ALSO AT 12.00 NOON. VISIT OUR WEBSITE TO REGISTER, VIEW THE LEGAL PACK AND BID.
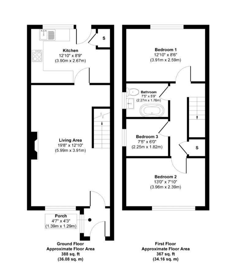
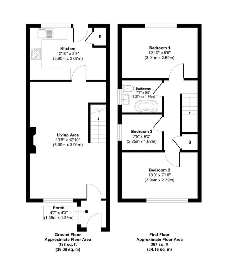
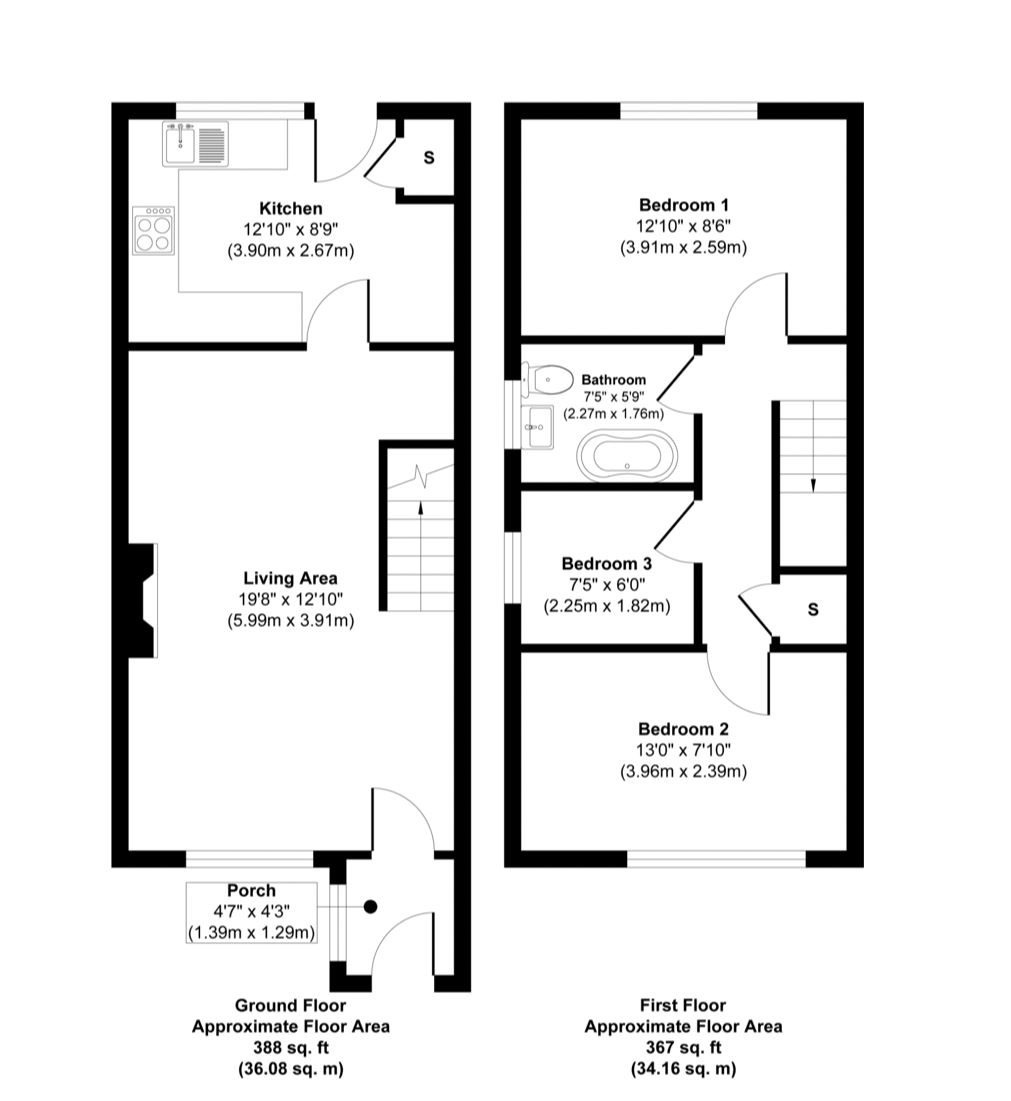
GROUND FLOOR
ENTERANCE PORCH
1.39m x 1.29m
Accessed via a uPVC double glazed front door, an internal glazed door leads through to the living room.
LIVING ROOM
5.99m x 3.91m
With an open plan feature staircase rising to the first floor, antique oak style laminate floor in a high gloss finish, two central heating radiators and good levels of natural light via the uPVC double glazed window which has a pleasant open aspect.
BREAKFAST KITCHEN
3.90m x 3.67m
Fitted with a range of modern white wall and base units with complementary slate effect working surfaces. The kitchen is further equipped with a fitted gas hob with oven beneath and stainless steel extractor canopy over. there is space for additional white goods beneath the counter tops including space for a fridge or freezer, plumbing for a washing machine and space for a tallboy fridge freezer.
FIRST FLOOR
BEDROOM 1
3.92m x 2.59m
Positioned at the rear of the property with a uPVC double glazed window to the rear elevation and a central heating radiator.
BEDROOM 2
3.96m x 2.39m
Located at the front of the property and enjoying the attractive open aspect via the uPVC double glazed window to the front elevation, central heating radiator.
BEDROOM 3
With a uPVC double glazed window to the gable end.
BATHROOM
Fitted with a white three piece suite comprising panel bath with shower over pedestal hand wash basin and low flush wc. Complementary tiled walls and a uPVC double glazed window with privacy glass inset, heated towel rail.
LANDING
With a useful cupboard storage area and a loft hatch allowing access to the roof void with a pull down ladder which provides additional storage.
OUTSIDE
There is a good sized front buffer garden with with a driveway to the side providing gated off-road parking. To the rear is an enclosed patio style garden, easily maintained, also a garage in the block to the rear of the property, we are informed.
AUCTION NOTES
The lot is offered in an online auction which is open to bid on the 29th January for 24 hours with closing bids before 12.00 noon on the 30th January 2026.
Buying at auction is a contractual commitment, you are legally obliged to buy the lot on the terms of the sale memorandum at the price you bid. If you are the successful bidder, you are required to pay the deposit and auction fees immediately. As agent for the seller, we treat any failure to satisfy your obligations as your repudiation of the contract and the seller may then have a claim against you for breach of contract. You must not bid unless you wish to be bound by the common conditions of auction. *Please be aware there may be additional fees payable on top of the final sale price. These include and are not limited to administration charges and buyer's premium fees payable on exchange, and disbursements payable on completion. Please ensure you check the property information page for a list of any relevant additional fees as well as reading the legal pack for any disbursements.*
CONTRACT INFORMATION
We draw your attention to the Special Conditions of Sale within the Legal Pack, referring to other charges in addition to the purchase price which may become payable. Such costs may include Search Fees, reimbursement of Sellers costs and Legal Fees, and Transfer Fees amongst others.
You must register online to inspect the documents prior to bidding.
The completion date as per the Common Auction Conditions online is 20 business days from the fall of the electronic hammer.
GUIDE PRICE
*GUIDE PRICE: This is an estimate of the likely range of selling price and is set at the commencement of marketing. The guide price may change during the marketing period. RESERVE PRICE: This is agreed with the Auctioneer prior to the auction and will not be disclosed to the public. The reserve price is the lowest figure at which the property is available for sale at the auction. If the lot is not sold at the auction then the property may be available for sale afterwards at a higher or lower figure. See catalogue for full explanation.
VIEWING
Viewings are by appointment running up top the sale date. Call now to arrange an inspection.
HOLDING FEE
£300 of your holding deposit fee will be used to cover banking costs and does not contribute towards your deposit.
COUNCIL TAX
BAND A
TENURE
We understand that the property is a long leasehold arrangement. 999 years from 1.7.1936. full details in the legal pack available prior to the sale.
A
* Generally speaking Guide Prices are provided as an indication of each seller's minimum expectation, i.e. 'The Reserve'. They are not necessarily figures which a property will sell for and may change at any time prior to the auction. Virtually every property will be offered subject to a Reserve (a figure below which the Auctioneer cannot sell the property during the auction) which we expect will be set within the Guide Range or no more than 10% above a single figure Guide.
Submit an enquiry and someone will be in contact shortly.
By setting a proxy bid, the system will automatically bid on your behalf to maintain your position as the highest bidder, up to your proxy bid amount. If you are outbid, you will be notified via email so you can opt to increase your bid if you so choose.
If two of more users place identical bids, the bid that was placed first takes precedence, and this includes proxy bids.
Another bidder placed an automatic proxy bid greater or equal to the bid you have just placed. You will need to bid again to stand a chance of winning.